模组特点:
1、独家设计,工程专业产品;
2、采用最新全面防水设计;
3、采用自主封装2727灯珠,提高整屏对比度,提高混光效果,显示效果更清晰;
4、采用双锁存IC,色彩效果更逼真;
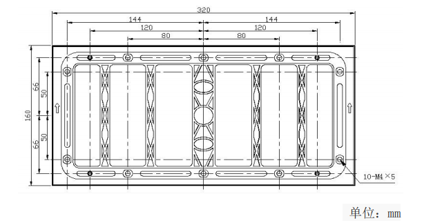
5、320×160标准化尺寸,更新升级更方便;
6、采用自主设计套件,匹配性、可靠性更佳;
7、产品采用真正节能IC,整屏可节能25%-30%
整屏价:10500元/平方
产 品 规 格 书
产品名称: 高刷户外 P8 全彩五扫模组
生产单位: 山西高科华杰光电科技有限公司
规格型号: PH8-O
适用范围
本产品规格书仅适用于节能户外 P8 全彩模组,质保两年,适用
规格型号:PH8-O(5S/40*20/HUB75E/A6a)。
产品说明
本产品使用自主封装 SMD 2727 灯珠,灯珠内封装红色、绿色、蓝色芯片各一个。2727 灯珠通过表面贴装技术(SMT)焊接在 PCB 板上。
本产品使用动态节能驱动 IC 芯片和集成的行驱动芯片通过计算机控制;显示视角宽阔,色彩纯正一致协调,亮度稳定均匀,文字、图像、视频清晰。
灯珠、芯片贴装在 PCB 板上,形成单元板,再安装在底壳和面罩上,形成模组。具有防阳光直射、防尘、防水、耐高温等特点,其外型精致美观,坚固耐用。
底壳有用于安装模组的 M4 螺纹孔。可将磁吸磁柱安装在模组上,再装成整屏;或使用螺钉将模组固定在箱体上,再将箱体拼接成整屏
PCB 编号:GKGD-P8-4020-2727-5S-VXX; VXX:版本号。
底壳型号:GKGD-P8-4020-2017B
模组技术参数
技术参数 规格参数
像素间距(mm) 8
像素密度(dot/m2) 15625
像素构成 1R1G1B
LED 封装方式 SMD 2727
模组分辨率 40×20
模组规格(mm) 长 320 ×宽 160厚 18.7±0.1
推荐最小观看距离 ≥8m
模组最大电流(A) 6.6
模组最大功耗(W) 27.7
视角 H≥120°V≥ 120°
整屏最大功率(W/m2) 541
整屏平均功率(W/m2) 270.5
屏幕亮度(cd/m2) ≥4500
扫描驱动方式 1/5 扫描,恒流驱动
工作电压(V) 4.2/5
使用寿命(小时) ≥100000
套件材质 PC+纤
防护等级 IP65(正面)
使用环境温湿度 -40℃~+80℃, 10%~80%RH
灰度等级 16384
刷新率(Hz) ≥3840
驱动 IC PWM 高刷恒流驱动 IC
控制方式 计算机控制,视频同步,实时显示
安装指导
模组安装孔位图

模组安装要求
模组防水安装
将防水胶圈装入模组背面的凹槽中。模组排水孔朝向显示屏下方向,模组背面安装螺纹孔与箱体对应安装孔对齐,用 M4 螺钉从箱体里面将模组固定在箱体上。防水胶圈要压平整,防水胶圈与模组和箱体之间不得出现缝隙,否则雨水可能从模组与箱体之间漏入箱体内。
固定模组螺钉
固定模组的螺钉为M4螺钉,螺钉穿过箱体后的长度不宜大于5mm。使用 GB9074.4 螺钉(如下图,弹簧垫、垫片与螺钉不可分离),能够可靠固定模组。箱体结构限制不可使用 GB9074.4 螺钉的部位,可使用 GB818 螺钉(见下图)。螺钉选型和命名方法请参见对应的国家标准。
模组安装间隙
模组面罩和外壳受热要膨胀,模组之间要留 0.2mm~0.3mm 缝隙,不预留缝隙可能出现面罩受热鼓起问题。
注意模组的名义尺寸为长 320mm×宽 160mm,须以实际尺寸计算模组安装间距,按名义尺寸计算模组间距,模组之间缝隙会偏大。
模组信号线连接方式
信号排线安装分为横向级联与对开连接两种方式。横向级联是横向模组之间使用排线联接,最右侧模组(正对模组)用长排线与接收卡连接。
对开连接是充分使用接收卡的方式,每一行模组分别使用长排线与接收卡连接。模组较多时,模组还可以继续使用横向级联的方式扩展。与横向级联方式相比,对开方式可提供更高的刷新率,显示效果更好。条件允许的情况下,应采用对开方式连接。
模组电源配置

电源线型号:一拖二-65cm-25cm/15cm VH 压线式条形连接线<纯铜>
显示屏安装方式
1.壁挂式安装方式
1)此安装方式一般用于大厦门口、大楼墙体广告等。
2)当屏体面积小时,一般不留维修通道空间,整屏取下进行维修,或者做成折叠一体式框架
2.立柱式安装方式
1)单立柱安装方式:适用于小屏应用;
2)双立柱安装方式:适用于大屏应用;
3)封闭式维护通道:适用于简易箱体;
4)敞开式维护通道:适用于标准箱体。
3.悬臂式安装方式
1)此方式一般用于公路、铁路、高速公路上作交通诱导使用;
2)屏体设计一般采用一体柜设计,或者吊装结构设计。
4.悬挂式安装方式
此安装方式与悬臂式安装方式类似,屏体采用一体柜设计方案。
显示屏安装注意事项
防水、防潮
显示屏安装在户外,经常日晒雨淋,风吹尘盖,工作环境恶劣。电子设备被淋湿或严重受潮会引起短路甚至起火,引发故障甚至火灾,造成损失。
要求屏体与建筑的结合部必须严格防水防漏;屏体要有良好的排水措施。
通风、降温
显示屏工作时本身就要产生一定的热量,如果环境温度过高且散热不良,集成电路可能工作不正常,甚至被烧毁,从而使显示系统无法正常工作。
要求安装通风设备降温,使屏体内部温度在-20℃~50℃之间。
屏体背后上方安装温控轴流风机排出热量。不易维修、维护的安装方式建议安装远程监控保护设施。
软件安装
显示屏控制和节目制作软件,与软件使用说明书,从控制系统官方网站下载。按照软件使用说明书安装和使用软件,对软件使用有疑问请与我公司售后服务咨询或与控制系统厂商售后服务咨询。
控制系统使用的接收卡程序,从高科光电官方网站下载。不同的模组列驱动 IC,可能需要不同版本的控制和节目制作软件,也可能需要将接收卡固件升级到指定的版本。控制和节目制作软件及接收卡固件版本不正确,会导致显示不正常,或性能不能调试到理想状态。具体要求请见高科光电官网提示或咨询高科光电售后服务电话。
安全要求
模组使用安全要求
安装静电防护要求
LED 模组使用过程要严格注意静电防护,接触模组人员必须佩戴有接地的静电手环或静电手套。
安装接地要求
为防止雷击或浪涌损坏芯片或 LED。模组装配过程中,各种电动工具必须良好接地,箱体中的开关电源外壳、屏体等要求正确接地(与强电地必须分开)。
模组清洁要求
清洁模组要求使用干净的软碎布蘸取酒精轻轻擦拭模组表面。不可使用作用未知的化学液体擦拭,以免损坏或腐蚀模组塑胶件、 LED 外壳或 LED 灯面胶体。清洁后,待模组表面完全晾干再通电使用显示屏。
维修要求
维修 LED 模组时,使用恒温电烙铁或恒温热风枪并良好接地。烙铁头一般使用刀形烙铁头。LED 焊接驱面元器件时,电烙铁温度一般在 300~360℃,焊接时间不能超过 3s,焊接次数不超过三次;灯面维修时,风枪温度一般设定在 260~280℃左右,风枪对着灯珠顺时针轻微晃动,待焊锡完全熔化后,再进行维修操作
防止磕碰要求
模组安装与运输过程中,不得摔、推、挤、压包装,防止模组跌落磕碰,以免发生套件破裂、灯珠脱落、灯珠破损、焊盘脱落、元器件脱落等问题。
显示屏使用安全要求
环境温度要求
为保证显示屏工作稳定与达到设计的使用寿命,要求模组工作时的表面温度≤85℃,显示屏体内部空气温度≤50℃。根据显示屏实际工作环境,采取必要的冷却措施,如增加抽、排风扇形成散热风道或安装空调制冷。
显示内容要求
为避免出现局部 LED 灯珠亮度严重衰减或死灯,使显示屏达到设计使用寿命,不可长期显示静止画面或静止文字,必须播放动态画面或动态文字。
电源连接要求
必须使用 LED 显示屏专用开关电源,单个开关电源连接的多个模组的总电流,不可超过电源额定最大输出电流的 80%。连接模组与电源的导线需要使用优质铜导线,并保证模组电源座处电压 U 范围为 4.0≤U≤4.5V/4.8≤U≤5.2V。连接电源时,必须注意模组电源座与开关电源输出端正负极对应,如果正负极接反模组会被烧毁,甚至发生火灾。模组不得连接交流 220V,会造成模组立即烧毁。电源接线时需确保模组插头、插座连接可靠,开关电源电源座接线端螺钉拧紧。插头、插座和螺钉松动会导致接触电阻增大引起烧线或产品损坏问题。电源输入的接地端必须与合格的接地线连接。不良接地会产生信号异常,显示不稳定,甚至烧屏的问题。
整屏验收要求及方法
显示屏亮度验收
将显示屏调成全亮状态,5 分钟内使用亮度计完成显示屏亮度测量。测量亮度时,要求亮度计光轴垂直于屏体。调整亮度计与显示屏距离,确保让亮度计目镜内黑色圆点或圆圈覆盖 16 个以上像素点,调整焦距使目镜内可清晰看到 LED 灯珠,然后测量并读取亮度数据。
可视角度验收
在屏体左右 120°位置,和显示屏下视角 65°位置观看,要求屏体无明显黑斑、无明显暗块现象。
接地检查
开关电源外壳、箱体、显示屏外框必须良好接地, 要求接地电阻≤10 欧,每半年检查一次接地电阻。
防雷设施检查
要求建筑物有避雷针或避雷设施并可靠接地,要求配电箱有配浪涌保护器,对避雷设施,每半年进行一次检查。雷雨天气应避免使用显示屏。
防烧屏操作要求
标准操作
整屏断电情况下连接信号排线和电源线,检查连接良好后再给整屏上电,发现显示不良立即整屏断电,整改接线后再整屏上电检验。
带电安装操作
需要带电安装时,必须按以下顺序操作:先接信号输入排线,再接信号输出排线,最后接 4.2V/5V 电源插头。模组必须逐张安装调试,不得连续安装多张显示不正常模组后再调试。
整屏使用中显示不正常处理
用户在使用过程中发现显示不正常,特别是有整行高亮现象,立即整屏断电后检修,避免在此情况下长时间供电。
孔位图下载:
户外P8安装孔位图.rar
加载程序下载:
户外P8-V2.2-灵星雨Rv908-SM16169加载程序.rar
户外P8-V2.2-摩西尔T-75E-SM16169S加载程序.rar
户外P8-V2.2-诺瓦308-SM16169S加载程序.rar
户外P8-V2.4-卡莱特5A-75B-16169加载程序.rar